- Lunch Magazine
- Posts
- 🍥 Lost in the broth
🍥 Lost in the broth
On cooking and eating ramen

My first job after college was as a dishwasher and prep cook at a ramen shop in Portland, Oregon, part of a small restaurant group, now defunct. I was working on the line within two months, my industry and reliability a clear asset to management.
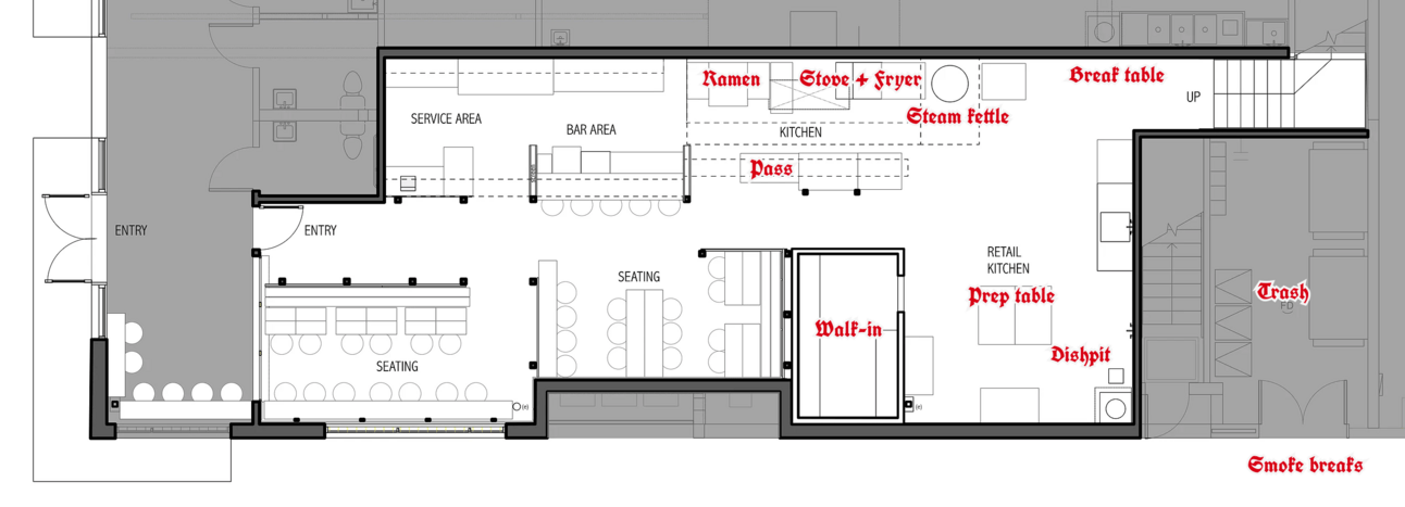
The line had two stations: ramen cook and fryer-stove cook. Ramen station was simpler in terms of component tasks but technically more complex, requiring tight choreography and timer cycles.
There were six baskets for cooking noodles (cook time just over two minutes) and space in the pass for eight bowls. Order of operations: drop the noodles, set the timer, add tare and fat to the bowl, drain the noodles, add to bowl, add broth, mix, add toppings, place in the pass, ring for service.
The trick was doing this six bowls at a time while ensuring your broth pots were stocked, your toppings were up to temp, and you hadn't added chicken broth to the vegetarian tare.
We had one cook who always flew too close to the sun, likely to rush back and place a half-dozen misassembled bowls on the prep table in a night, constantly chipping away at the bottom line. "Here's a miso I accidentally put egg in if anybody wants it," he'd say. Nobody ever wanted it; when you have your shift meal, you don't want a lukewarm misfire bowl.

I found the floor plan. Good luck reading my labels.
One of the three best bowls of ramen I've had was at LA's Tsujita two years ago. I'd never had tsukemen (a bowl of noodle for dipping in a bowl of richly reduced broth) before, and the deep, rich, fish-pork broth was stunning.
Another was this past weekend at Bushwick's Za-Ya. I had the "Gyukotsu Miso," a beef marrow broth with short rib, corn, bean sprouts, and scallions. Like Tsujita's tsukemen, it was lip-coatingly rich.
The third was at Noraneko, where I worked after college. After taking a beating on the line or clearing a Sisyphus dish pit and entering a lull in the night (I almost exclusively worked nights; we closed at 2:00AM), I'd assemble a bowl of my own and sit by the stairs in the back of the kitchen.
Shio ramen — a light salt tare, more schmaltz than portioned for customer orders, chicken broth, plenty of scallions, sesame seeds, poached chicken, blanched spinach, and sometimes an egg. Simple, clean, light.

Tsujita’s tsukemen. Picture not my own.
They'd initially told me I hadn't gotten the job; it had gone to a guy named Jean-Luc, who had more kitchen experience than my none. Chef called back three days later; they'd had to fire the sous chef for coming in wasted, knocking over some plants, sitting in the industrial steam kettle, pulling out a pipe, smoking weed, and yelling at the rest of the staff.
As an on-shift rule, kitchen staff wouldn't start drinking until 10:00PM, four hours before close.
The owner himself wrestled with alcoholism — certainly a contributing factor to the restaurant group's demise.

Reply